Jonathan F. Bell, ARCHITECT

Jonathan Bell is an architect specializing in small, complex projects, adaptive reuse, interior architecture, and residential design. Jonathan has over 16 years of experience, and addresses the specifics of each project with a clear, straightforward, and creative approach. His work has won numerous awards, and has been published and exhibited locally, nationally, and internationally.

Old Brick School House, Providence Preservation Society (Photo: Warren Jagger)

The Old Brick School House, built in 1769, has witnessed many significant moments in Providence’s history. From hosting Brown University’s first classes in Providence, to storing patriot munitions during the Revolutionary War, to pioneering educational models for African American schoolchildren, to modeling the first fresh air classrooms in the U.S. for children with tuberculosis, the building has now been home of the Providence Preservation Society for over sixty years.

JFBA’s latest interior updates and elevator addition increase accessibility for public programming, offer the public a rotating exhibit gallery to highlight PPS’s historic preservation mission, improve the workspaces for PPS’s staff, and update the climate systems to eliminate fossil fuel use within the building. The contemporary addition and interventions are designed with timeless materials (plaster, glass, wood) to complement the unique site and add the next chapter to the building’s ongoing history.

Front of building (photo: Warren Jagger)

Interior of (nearly) completed upper floor meeting space (photo: Warren Jagger)

First floor plans: before and after

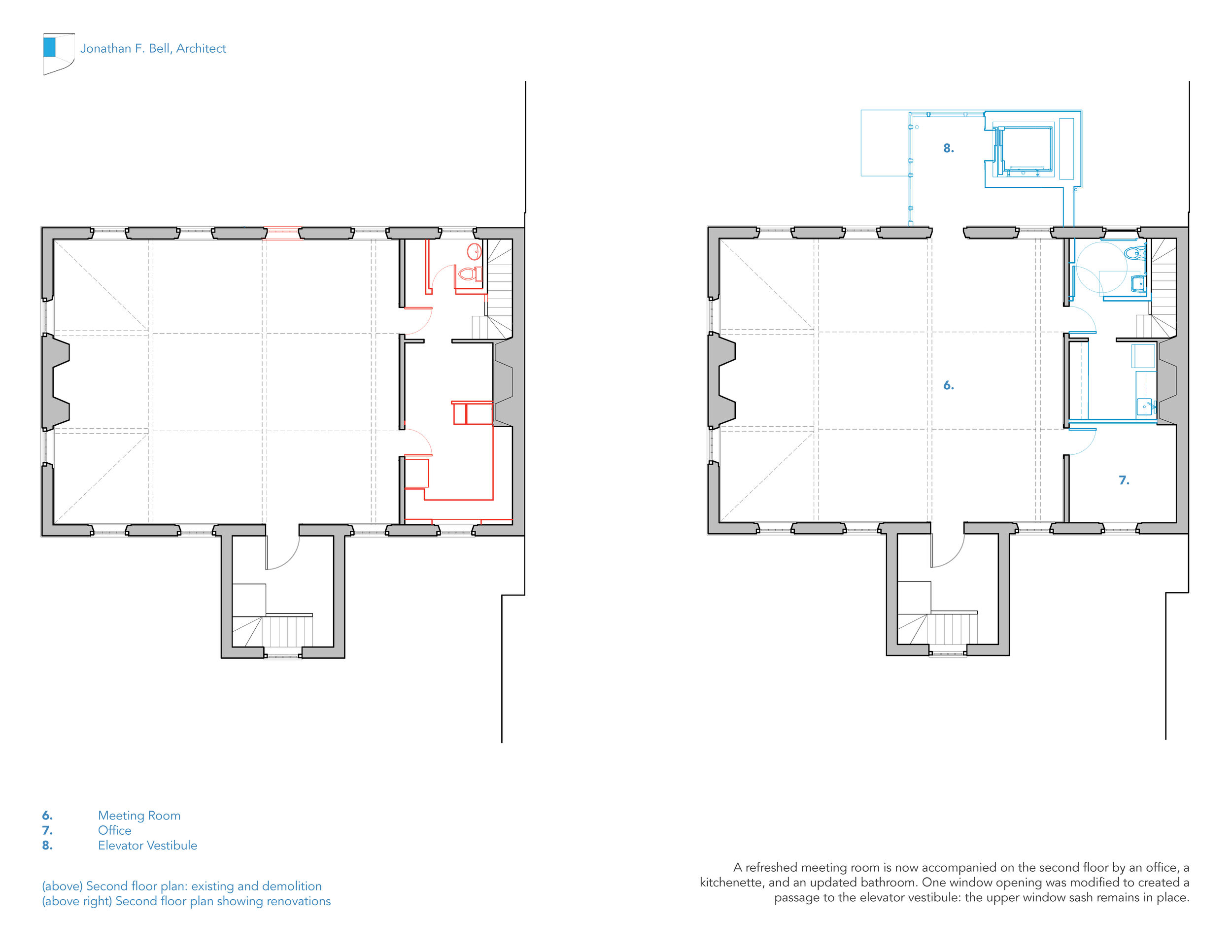
Second floor plans: before and after

Old Brick School House with context of downtown Providence (photo: Warren Jagger)

Here is a short video, commissioned by Pella, who supplied the window and cladding systems.

"Sophistication is not necessarily the product of highly developed machinery, nor intensive capital investment. It is more a way of using available equipment and resources with cunning and intelligence." —Reyner Banham, from The Architecture of the Well-tempered Environment